Verkocht:Nieuwesluisplein 3, 3218 VP Heenvliet - Foto
Verkocht
+32

Nieuwesluisplein 3 3218 VP Heenvliet

  • Woonhuis
  • 5 kamers
  • 4 slaapkamers
  • 1 badkamers
  • Bouwjaar 1974
  • 136 m² perceeloppervlakte
  • 112 m² gebruiksoppervlakte
  • B Energielabel B

Beschrijving

Gezinswoning met zonnige tuin in een rustige wijk
In het gezellige Heenvliet staat deze keurig onderhouden tussenwoning met een woonoppervlakte van ca. 112 m², gelegen op een perceel van 136 m². De woning heeft vijf kamers, waaronder vier slaapkamers, en is voorzien van kunststof kozijnen met HR++ glas, 10 zonnepanelen en energielabel B. De achtertuin ligt gunstig op het noordwesten en biedt volop zon in de middag en avond. Dankzij de rustige ligging en het fijne formaat is dit een ideale gezinswoning, die naar eigen smaak te moderniseren is.

Uw bezichtigingsaanvraag ontvangen wij graag per mail/Funda.

Fijne ligging met voorzieningen dichtbij
De woning ligt in een rustige woonwijk met voornamelijk soortgelijke woningen. Vanuit hier zijn winkels, scholen, sportvoorzieningen en openbaar vervoer op korte afstand bereikbaar. Ook de aansluiting naar de snelweg is goed, waardoor steden als Rotterdam vlot te bereiken zijn. Heenvliet heeft een gemoedelijke sfeer, veel groen en recreatiemogelijkheden in de directe omgeving, waaronder wandel- en fietsroutes langs het water en door het polderlandschap.

Pluspunten van deze woning
- Woonoppervlakte ca. 112 m²
- Perceel van 136 m²
- Energielabel B
- Kunststof kozijnen met HR++ glas
- 10 zonnepanelen
- Vier slaapkamers
- Achtertuin op het noordwesten met middag- en avondzon
- Voortuin op het zuidoosten, ideaal voor de ochtendzon
- Vrijstaande berging
- Rustige wijk nabij voorzieningen

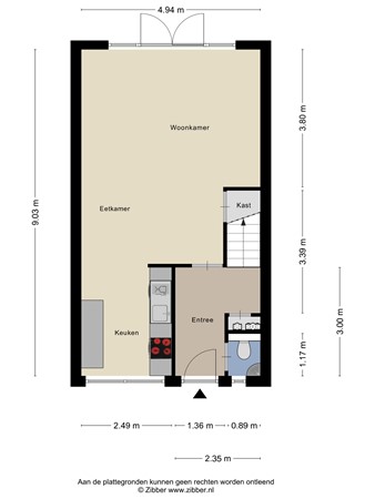
Indeling
Begane grond
Entree met hal, meterkast, trapkast, toilet en toegang tot de woonkamer. De tuingerichte woonkamer heeft veel lichtinval en dubbele tuindeuren naar de achtertuin. De ruimte is afgewerkt met een plavuizen vloer, in de woonkamer en keuken PVC en wanden voorzien van behang. De keuken bevindt zich aan de voorzijde en is uitgerust met een 4-pits gaskookplaat, afzuigkap, vaatwasser en koelkast.

Eerste verdieping
Overloop met toegang tot twee ruime slaapkamers en een derde, kleinere kamer die ideaal is als kinderkamer of werkruimte. De badkamer is op leeftijd, maar biedt volop mogelijkheden voor modernisering en is vanwege zijn afmetingen boven gemiddeld groot.

Tweede verdieping
Via een vaste trap bereik je een ruime vierde slaapkamer, voorzien van veel licht en extra bergruimte. Vanuit hier is ook het dakterras bereikbaar.

Buitenruimte
De achtertuin ligt op het noordwesten, waardoor je hier de middag- en avondzon hebt. De voortuin ligt op het zuidoosten en is perfect voor een kop koffie in de ochtendzon. Beide tuinen zijn beschut en bieden veel privacy. De vrijstaande berging bevindt zich in de voortuin.

Een nieuw hoofdstuk voor deze woning
De woning is nog dit jaar beschikbaar. De huidige bewoners hebben hier altijd met veel plezier gewoond en zien graag dat de koper hier een nieuw thuis maakt en de woning naar eigen hand zet. Maak snel een afspraak en ontdek zelf de mogelijkheden van Nieuwesluisplein 3 in Heenvliet!

Kaart

Kenmerken

Overdracht

Referentienummer
00002
Vraagprijs
€ 350.000,- k.k.
Status
Verkocht
Aanvaarding
In overleg
Aangeboden sinds
Maandag 18 augustus 2025
Laatste wijziging
Zaterdag 4 oktober 2025

Bouw

Type object
Woonhuis, eengezinswoning, tussenwoning
Soort bouw
Bestaande bouw
Bouwperiode
1974
Dakbedekking
Dakpannen
Type dak
Zadeldak
Isolatievormen
Dakisolatie
Dubbel glas
Vloerisolatie

Oppervlaktes en inhoud

Perceeloppervlakte
136 m²
Woonoppervlakte
112 m²
Inhoud
396 m³
Oppervlakte externe bergruimte
7 m²
Oppervlakte gebouwgebonden buitenruimte
10 m²

Indeling

Aantal bouwlagen
3
Aantal kamers
5 (waarvan 4 slaapkamers)
Aantal badkamers
1 (en 1 apart toilet)

Locatie

Ligging
Aan rustige weg
Dichtbij openbaar vervoer
In woonwijk
Nabij school

Tuin

Type
Achtertuin
Hoofdtuin
Ja
Oriëntering
Noord west
Heeft een achterom
Ja
Staat
Normaal
Tuin 2 - Type
Voortuin
Tuin 2 - Oriëntering
Zuidoost
Tuin 2 - Staat
Normaal

Energieverbruik

Energielabel
B

CV ketel

CV ketel
HR-107
Warmtebron
Gas
Bouwjaar
2014
Combiketel
Ja
Eigendom
Eigendom

Uitrusting

Warm water
CV-ketel
Verwarmingssysteem
Centrale verwarming
Ventilatie methode
Mechanische ventilatie
Keukenvoorzieningen
Inbouwapparatuur
Badkamervoorzieningen
Bidet
Douche
Toilet
Wastafelmeubel
Heeft kabel-tv
Ja
Tuin aanwezig
Ja
Telefoonaansluiting aanwezig
Ja
Beschikt over een internetverbinding
Ja
Heeft schuur/berging
Ja
Heeft ventilatie
Ja

Kadastrale gegevens

Kadastrale aanduiding
Heenvliet B 4033
Perceeloppervlakte
136 m²
Omvang
Geheel perceel
Eigendomsituatie
Eigen grond