Verkocht onder voorbehoud:Essenlaan 10, 2935 SN Ouderkerk aan den IJssel - Foto
Verkocht onder voorbehoud
+48

Essenlaan 10 2935 SN Ouderkerk aan den IJssel € 440.000,- k.k.

  • Woonhuis
  • 5 kamers
  • 4 slaapkamers
  • 1 badkamer
  • Bouwjaar 1972
  • 137 m² perceeloppervlakte
  • 135 m² gebruiksoppervlakte
  • C Energielabel C

Beschrijving

Essenlaan 10 – Comfortabele eengezinswoning met moderne keuken, airco’s, zonnepanelen en royale overkapping

In een rustige, kindvriendelijke straat van Ouderkerk aan den IJssel staat deze goed onderhouden tussenwoning uit 1972 met energielabel C. De woning is verrassend ruim, heeft vier slaapkamers, een moderne keuken (2022), twee airco’s, tien zonnepanelen en een fijne overkapping in de achtertuin – ideaal voor wie comfortabel en duurzaam wil wonen.

Highlights van deze woning
• Energielabel C (dit label is afgegeven voor de plaatsing van de zonnepanelen)
• Instapklaar en goed onderhouden
• Vier slaapkamers, ideaal voor gezinnen of thuiswerkers
• Moderne keuken (2022) met hoogwaardige inbouwapparatuur
• Airconditioning op de begane grond en in één slaapkamer
• Tien zonnepanelen (in eigendom)
• HR-combiketel (Remeha, 2007 in eigendom)
• Ruime aluminium overkapping in de achtertuin
• Zonnige tuin met achterom en een stenen berging
• Gelegen in een rustige, kindvriendelijke wijk, dichtbij scholen, winkels en natuur

Indeling

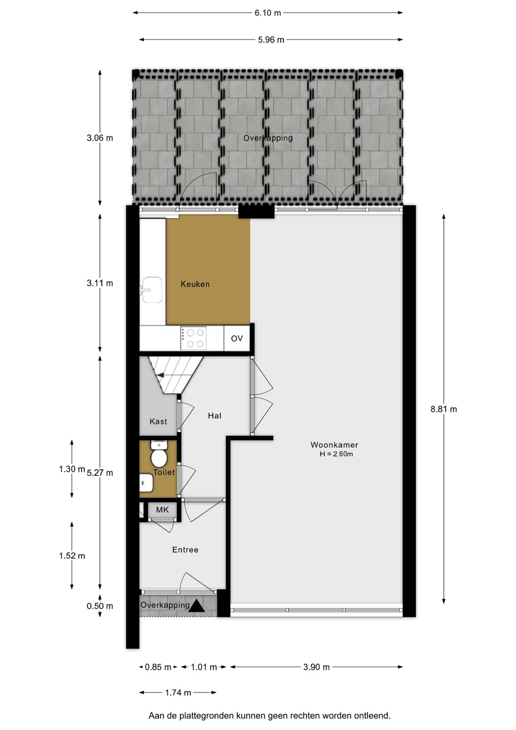
Begane grond
Entree/hal met meterkast, trapopgang en trapkast. Toiletruimte met fonteintje. Lichte woonkamer met airconditioning en toegang tot de verzorgde achtertuin. De open keuken uit 2022 is modern uitgevoerd en voorzien van een inductiekookplaat met bladafzuiging, combi-oven, koelkast, vriezer, vaatwasser en een kokend waterkraan (Whirlpool). Via een deur én dubbele tuindeuren is er direct toegang tot de tuin met ruime overkapping.

Eerste verdieping
Overloop met drie slaapkamers, waarvan één met airconditioning. Badkamer met douche, hangend toilet, wastafelmeubel en aansluitingen voor wasmachine en droger.

Tweede verdieping
Voorzolder met dakraam en bergruimte, stookruimte met HR-combiketel, en een ruime vierde slaapkamer met dakkapel en twee dakramen.

Buiten
De woning beschikt over een keurig aangelegde voor- en achtertuin met achterom, een aluminium overkapping en een separate stenen berging. Hier geniet je volop van het buitenleven.

Locatie
De Essenlaan ligt in een prettige woonomgeving met volop groen, speeltuintjes en voorzieningen in de buurt. Winkels, scholen, sportclubs en openbaar vervoer zijn op korte afstand aanwezig. Bovendien zijn Rotterdam en Gouda uitstekend bereikbaar met zowel de auto als het openbaar vervoer.

Kortom:
Essenlaan 10 is een energiezuinige, comfortabele en instapklare gezinswoning met alles wat je nodig hebt — ruimte, duurzaamheid én sfeer.

Kaart

Kenmerken

Overdracht

Referentienummer
00013
Vraagprijs
€ 440.000,- k.k.
Status
Verkocht onder voorbehoud
Aanvaarding
In overleg
Aangeboden sinds
Vrijdag 3 april 2026
Laatste wijziging
Woensdag 29 april 2026

Bouw

Type object
Woonhuis, eengezinswoning, tussenwoning
Soort bouw
Bestaande bouw
Bouwperiode
1972
Dakbedekking
Dakpannen
Type dak
Zadeldak
Isolatievormen
Dakisolatie
Grotendeels dubbel glas
HR-glas
Vloerisolatie

Oppervlaktes en inhoud

Perceeloppervlakte
137 m²
Woonoppervlakte
134,5 m²
Inhoud
461 m³
Oppervlakte externe bergruimte
6,3 m²
Oppervlakte gebouwgebonden buitenruimte
19,5 m²

Indeling

Aantal bouwlagen
3
Aantal kamers
5 (waarvan 4 slaapkamers)
Aantal badkamers
1 (en 1 apart toilet)

Locatie

Ligging
Aan rustige weg
Dichtbij openbaar vervoer
In woonwijk

Tuin

Type
Achtertuin
Oriëntering
Zuid-west
Heeft een achterom
Ja
Staat
Goed onderhouden
Tuin 2 - Type
Voortuin
Tuin 2 - Oriëntering
Noord-oost
Tuin 2 - Staat
Goed onderhouden

Energieverbruik

Energielabel
C

CV ketel

CV ketel
Remeha
Warmtebron
Gas
Bouwjaar
2007
Combiketel
Ja
Eigendom
Eigendom

Uitrusting

Warm water
CV-ketel
Verwarmingssysteem
Airconditioning
Centrale verwarming
Ventilatie methode
Natuurlijke ventilatie
Badkamervoorzieningen
Douche
Toilet
Wasmachineaansluiting
Wastafelmeubel
Heeft airco
Ja
Glasvezelaansluiting aanwezig
Ja
Tuin aanwezig
Ja
Heeft schuur/berging
Ja
Heeft een dakraam
Ja
Heeft zonnepanelen
Ja

Kadastrale gegevens

Kadastrale aanduiding
Krimpenerwaard C 2876
Perceeloppervlakte
137 m²
Omvang
Geheel perceel
Eigendomsituatie
Eigen grond